- HOME
- 施工事例一覧
- リノベーション事例一覧
- 古民家再生リフォーム事例一覧
- 野洲市 N様邸 全面改装リフォーム事例
野洲市 N様邸 全面改装リフォーム事例
| 温かみある古民家 |
| 2017年度ジェルコリフォームコンテスト 近畿大会 ベターリフォーム賞 |
| 費用 | 3,000万円 |
| 工期 | 4ヵ月 |
| リフォーム箇所 | キッチン・お風呂・洗面・トイレ・リビング・ダイニング・洋室・和室・外壁・屋根 |
|
・全面的に改装したい |
|
もともと立派なたたずまいのお家だったので、 |
施工前
![]() |
![]() |
![]() |
| キッチン |
浴室 | トイレ |
![]() |
![]() |
|
| 和室 |
リビング | 外観 |
施工後
| 玄関 |
玄関 |
| 玄関ホール |
ホール |
| シューズクローク |
|
| 階段 |
玄関吹き抜け |
| 玄関吹き抜け |
2階 |
| 2階 | 2階 |
| 寝室 |
寝室 |
| システムバス リクシル アライズ |
洗面脱衣室 |
| キッチン・ダイニング |
キッチン リクシル シエラ |
| リビング |
リビング |
| リビング・ダイニング |
念願の薪ストーブ |
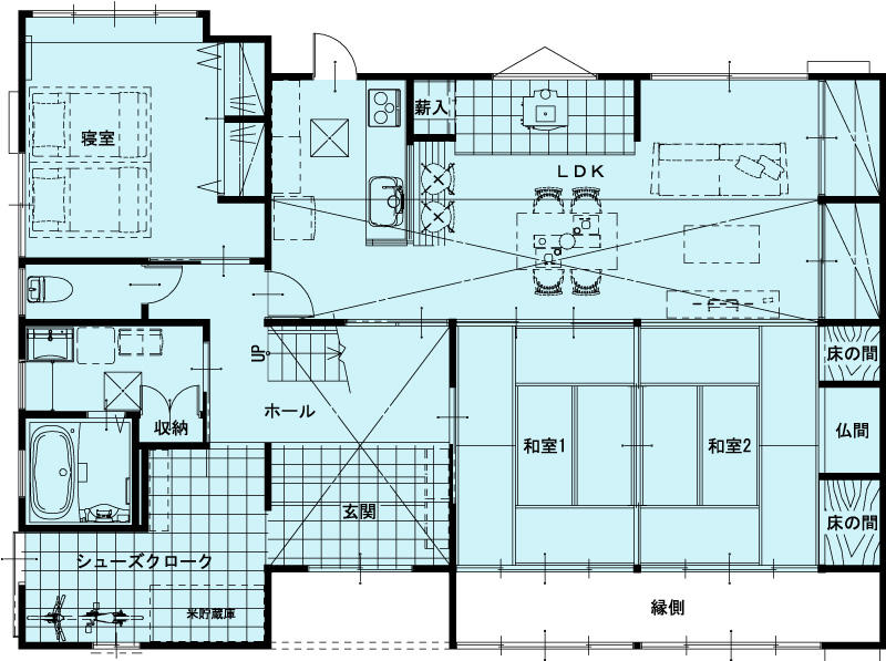
図面
![]() |
![]() |
| BEFORE 1階 | BEFORE 2階 |
![]() |
![]() |
| AFTER 1階 | AFTER 2階 |
工事が予定通りに進まず、年内に入居できるだろうかと心配になるなど、残念なところもありましたが、古い家の良さを残しつつ念願だった薪ストーブを設置したイメージ通りの家として蘇りました。
又、担当者の古屋さんには細部にわたり無理なお願いをしましたが、その都度迅速に対応していただき本当にお世話になりました。ありがとうございます。
私達にとっての「終のすみか」を大切に使わせていただきます。
長い工事期間でしたが、本当にお世話になりました。
職人さんにも色々とお気遣い頂きまして、本当に我々も助かりました。
薪ストーブは工事期間中も最後までこだわり抜いて選んでもらったので、とてもかっこ良くて暖かい、納得のいくものになり本当に良かったです。
本当にありがとうございました!!!
まだまだ、これからも長いお付き合いになると思いますので、どうぞよろしくお願いします。
















































