電話で見積り・相談 0120-526-010 【受付】10:00~18:00【定休日】毎週火曜日・水曜日
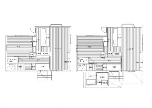
庭の部分にお風呂増設
平面図
カウンターにて手軽に食事ができるように
リビングの壁には家具職人による手造りの棚を設置。ガラス棚の部分にはダウンライトから優しい光を照らします。
お客様を迎える玄関には壁厚を利用して、ニッチ(棚)を造りました。お気に入りの絵画を飾ったり、お花を飾ったり色々な用途に利用できるスペースです。
ユニットバスと洗面スペースを増設
お風呂と洗面スペースを増設させていただきました。庭部分を利用しての増設でしたので、広々とまでは無理でしたが洗面所と浴室との勝手が便利なように配置しました。育ち盛りで、かわいい男の子がお二人いらっしゃいますので、これから洗濯機がフル稼働するのではないでしょうか?ご主人をはじめ家族皆様に喜んでいただけ担当した私としても思い出深い現場となりました。 担当者:室田
お風呂と洗面スペースを増設させていただきました。庭部分を利用しての増設でしたので、広々とまでは無理でしたが洗面所と浴室との勝手が便利なように配置しました。育ち盛りで、かわいい男の子がお二人いらっしゃいますので、これから洗濯機がフル稼働するのではないでしょうか?ご主人をはじめ家族皆様に喜んでいただけ担当した私としても思い出深い現場となりました。 担当者:室田