- HOME
- 施工事例一覧
- こだわりリフォーム事例一覧
- 野洲市 M様邸 増改築・大型リフォーム事例
野洲市 M様邸 増改築・大型リフォーム事例
| 柔らかく包まれた「場」をつくる |
| 2014年度ジェルコデザインコンテスト 全国大会優秀賞受賞 |
![]() |
吹き抜けから光が注ぐ、明るいワンフロアに家族の笑顔が広がる
| 費用 | 約1000万円 |
| 工期 | 3ヶ月間 |
| リフォーム箇所 | LDK、子ども室、浴室、玄関 |
![]() |
![]() |
|
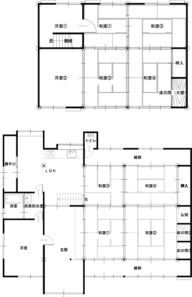
ご主人が生まれ育った住まいは、和室中心の伝統的な日本家屋。 |
|
2階の一部を吹き抜けとし、新しくつくるLDK空間に安定した明るい光が入り込むような |
LDK
LDKは1つながりでありながら、それぞれが落ち着いた空間になるように構成。
階段下やキッチン奥にパントリーを設け収納力もアップしています。
施工前
![]() |
![]() |
![]() |
| ビフォー |
ビフォー | キッチンビフォー |
施工後
水まわり
設備が古く、冷える浴室、脱衣所、トイレを最新のものに変えました。
断熱性もよく、快適にお過ごしいただけます。間取りも大きく変更しました。
施工前
![]() |
![]() |
|
| お風呂ビフォー |
洗面脱衣所ビフォー |
施工後
![]() |
![]() |
| 在来のお風呂から一坪のUBをいれました | 洗面脱衣所 |
玄関・廊下
御影石の玄関ホールには式台を設けて来客をもてなす空間に。
ダウンライトのあかりがモダンな雰囲気になっている。
施工前
![]() |
||
| 玄関ビフォー |
施工後
![]() |
![]() |
| 広々した玄関、階段の格子と御影石をはり和空間に |
廊下 |
お子様個室
子供室には屋根の勾配を利用してロフトを設置。
LDKと天窓を共有することで、互いの気配をさり気なく感じるようにしています。
施工後
![]() |
|
| こども部屋 |
自然光が入って明るくなった上に照明も雰囲気があり気に入っています。
収納も使いやすく工夫してもらい、見違えるような住まいになりました。
バリアフリーになったこともあり、高齢の母にも暮らしやすい住まいになったと思います。






























































