蒲生郡 Z様邸 増改築・大型リフォーム事例
古き良きものを継承し、そこに新しい息吹をもたらすリフォーム
| 費用 |
3000万円 |
| 工期 |
6ヶ月間 |
| リフォーム箇所 |
全面改装 |
|
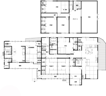
・お母様がひとりでお住まいだったあまりにも立派な日本家屋 ・使われていないお部屋がたくさんあり、納戸のような用途になっていました そこへ、お子さまご家族が同居するという話が上がり、 ・2世帯で住めるようなプランを提案させていただくことになりました ・内装はもちろんのこと、外壁や外構工事にも及ぶ大規模なリフォームです
|
|
もともと大きなお家ですので、お子さまのお部屋、お母様のお部屋・寝室等 十分な部屋数と収納を確保することができました。 そこで大切になってくるのが、個々のプライバシーと、家族のコミュにケーションの場、 世代間のつながりのバランスをとることです。 吹き抜けがあるLDKを中心に、縦へ、横へとコミュニケーションのとれる空間を設ける反面、 お母様用に水まわりをもう一つづつ設け、時には世代間の適切な距離を保つことができます。
|
LDK
大きな吹き抜けになっているLDKは既存の太鼓張りを表に出し、
旅館のような趣があり、かつ奥行が感じられる空間になりました。
また、念願の薪ストーブを設置し、暖かで自然なぬくもりが大きな空間を包み込みます。
施工前
 |
 |
|
リビングビフォー
|
ダイニングキッチンビフォー |
|
施工後
 |
 |
リビング
|
薪ストーブ |
 |
 |
吹き抜けより
|
吹き抜けより |
 |
 |
ダイニング
|
ダイニング |
 |
|
ダイニング
|
|
2F寝室・洋室
寝室は既存の鴨居梁がアクセントになっています。
またもう一部屋あるフリースペースは奥様のくつろぎ空間。
1Fの薪ストーブの熱気が上がってくるような仕組みにし、洗濯物も干せるスペースになっています。
施工前
 |
|
|
2Fビフォー
|
|
|
施工後
水まわり
1Fトイレは将来的なことも考えて広々としたユニバーサルデザインに。
2階にもトイレを設けました。洗面脱衣所は広めにとり、収納も大きめにとっています。
施工前
 |
|
|
階段ビフォー
|
|
|
施工後
玄関ホール
広々としたホールには娘さんが描いた絵画が飾られています。
施工前
 |
|
|
玄関ビフォー
|
|
|
施工後
 |
 |
玄関ホール
|
玄関ホール |
外観
焼板貼替、漆喰塗りまた外構工事により外観は重厚感のある堂々とした佇まいになっています。
足元と庭を照らす照明で旅館の玄関を思わせるおもてなしのアプローチ。
施工後
お客様の声
薪ストーブにとても感動しました。実際に薪に火をくべることに楽しさを覚えています。
アプローチの小庭もずごく粋に作っていただいたので気に入っています。
時にはライトアップされた庭を眺めています。
LDKは吹き抜けになっていて暖房がききにくいのではないかと心配もあったのですが、
それ以上に薪ストーブの自然な暖かみや立派な梁、カフェのようなおしゃれな雰囲気に大満足です。
担当者より一言
役員
取締役 古川伸幸
このようなご立派なお家の工事を任せていただき、有難うございました。
提案させて頂いた薪ストーブにとても感動されてらっしゃたので、本当に良かったと思います。
お母様も「あんばいよ~してもらって」とお話しする度に言っておられたのが嬉しくて、印象的でした。
また何かあればいつでもご連絡ください。